Weserbergland · SkyEstate

Leben wo andere
Urlaub machen

Allensteiner Str. 7 · 31737 Rinteln

375.000 EUR

158 Wohnfläche
6 Zimmer
2000 Baujahr
724 Grundstück

Über das Objekt

Großzügiges Familienhaus im Herzen des Weserberglands

Dieses massiv gebaute Einfamilienhaus liegt in einer sehr gepflegten Nachbarschaft mit malerischem Blick auf die Berge und den Luhdener Klippenturm. Das helle Wohnzimmer öffnet sich zur Terrasse, die Küche bietet vom Frühstückstisch einen romantischen Bergblick, und der Wintergarten lädt das ganze Jahr zum Verweilen ein. Im Obergeschoss erwarten Sie das geräumige Hauptschlafzimmer mit Balkon sowie zwei Kinderzimmer. Ein großer Dachboden und der Keller bieten zusätzlichen Stauraum. Der Garten mit altem Obstbaumbestand, Trauben und Fischteich mit Bachlauf ist ein echtes Idyll.

Highlights

  1. 01 Wintergarten, Balkon & Terrasse — drei Außenbereiche
  2. 02 Malerischer Bergblick auf den Luhdener Klippenturm
  3. 03 Garten mit Obstbäumen, Trauben & Fischteich
  4. 04 Doppelcarport, Keller & großer Dachboden
  5. 05 Alle Nahversorger & Schulen fußläufig in Rinteln
Bergblick Luhdener Klippenturm direkt sichtbar
Ruhige Wohnlage Gepflegte Nachbarschaft in Rinteln
Wintergarten Lichtdurchfluteter Anbau, ganzjährig
724 m² Garten Obstbäume, Trauben & Fischteich
Doppelcarport + Keller & großer Dachboden
Nahversorgung Einkauf & Schulen fußläufig

360° Innenrundgang

Bewegen Sie sich frei durch alle Räume. Klicken und ziehen zum Umsehen, Mausrad oder Pinch zum Zoomen.

Klicken & Ziehen zum Umsehen

Das Grundstück aus der Luft

724 m² Gartenidyll, Doppelcarport und malerische Lage — erleben Sie die Immobilie aus der Vogelperspektive.

Rundflug I — Überblick

Rundflug II — Garten & Terrasse

Perspektive — Lage im Grünen

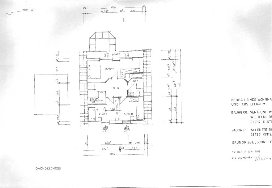
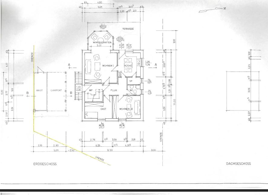
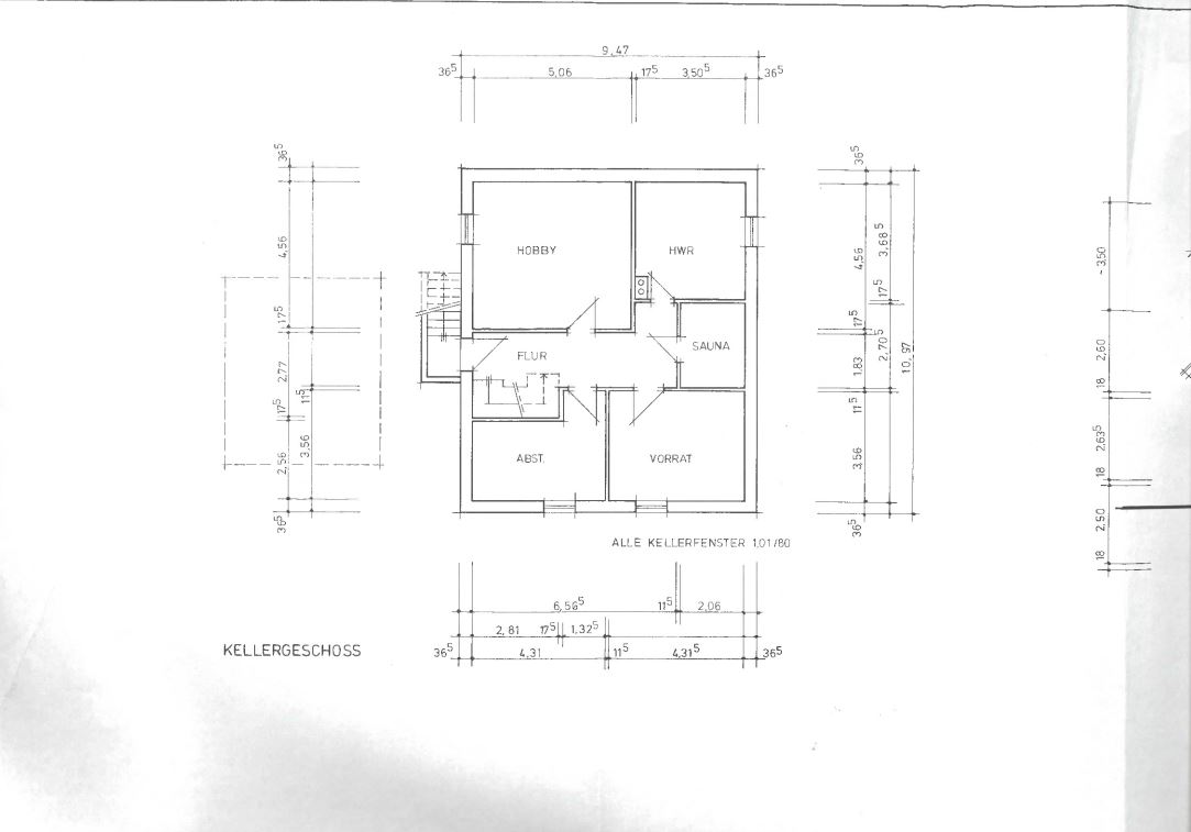
Grundriss

Schematische Darstellung · Maßstab 1:100 · Alle Angaben aus dem Bauantrag 1999

Erdgeschoss · M 1:100 · Bauantrag 1999

Dachgeschoss · M 1:100 · Bauantrag 1999

Kellergeschoss · M 1:100 · Bauantrag 1999

Schnitt A–A & Schnitt B–B · M 1:100

Alle Details

Objekt Einfamilienhaus
Adresse Allensteiner Str. 7, 31737 Rinteln
Wohnfläche 158 m²
Nutzfläche 85 m²
Zimmer 6 (3 Schlafzimmer, 1 Bad, Gäste-WC)
Baujahr 2000
Grundstück 724 m²
Stellplatz 2 Carports
Heizung Erdgas
Energieklasse F · 161,1 kWh/(m²·a)
Ausstattung Wintergarten · Balkon · Keller · Einbauküche · Fischteich · Bergblick
Provision 3,57 % des Kaufpreises (inkl. MwSt.)
Kaufpreis 375.000 EUR

Zentral & trotzdem
im Grünen

Rinteln liegt im Herzen des Weserberglands — umgeben von Natur, und dennoch mit allem Notwendigen in Reichweite.

  • Rinteln Zentrum ca. 1,5 km
  • Grundschule ca. 0,6 km
  • Supermarkt ca. 0,5 km
  • Bahnhof Rinteln ca. 2,0 km
  • Luhdener Klippenturm Blick aus dem Haus

Was kostet mich
dieses Haus pro Monat?

Interaktiver Finanzierungsrechner — passen Sie Eigenkapital und Laufzeit an.

375.000 EUR
75.000 EUR
10 %40 %
300.000 EUR
3,50 % p.a.

Monatliche Rate

1.508 EUR

Indikativwert · Angebot Ihrer Bank kann abweichen

Gesamtkreditbetrag 300.000 EUR
Gesamtzahlung 452.400 EUR
Zinsen gesamt 152.400 EUR
Besichtigung vereinbaren →

Ihr Zuhause
wartet auf Sie.

Überzeugt? Vereinbaren Sie eine persönliche Besichtigung oder lassen Sie sich alle Unterlagen unverbindlich zusenden — wir antworten innerhalb von 24 Stunden.

Jetzt Kontakt aufnehmen

Einfamilienhaus · Allensteiner Str. 7

Allensteiner Str. 7
31737 Rinteln, Niedersachsen